Ремонт на апартамент - Цялостен Процес в София Консултация, изготвяне на технически чертежи, аранжировки, функционално зониране на помещенията, ВиК и Ел. позиционирене, дизайни на стаи и бани и изпълнение на проекта.
Предлагаме професионални строителни ремонти в София – от малки довършителни дейности до цялостни ремонти на апартаменти, къщи и офиси. Работим с опитни майстори, доказани материали и ясни срокове.
Извършваме шпакловка, боядисване, гипсокартон, ВиК и електро инсталации, ремонт на баня, подови настилки и топлоизолация. Предлагаме цялостни решения, съобразени с вашия бюджет.
Работим в София – Люлин, Младост, Дружба, Лозенец, Център и всички квартали.
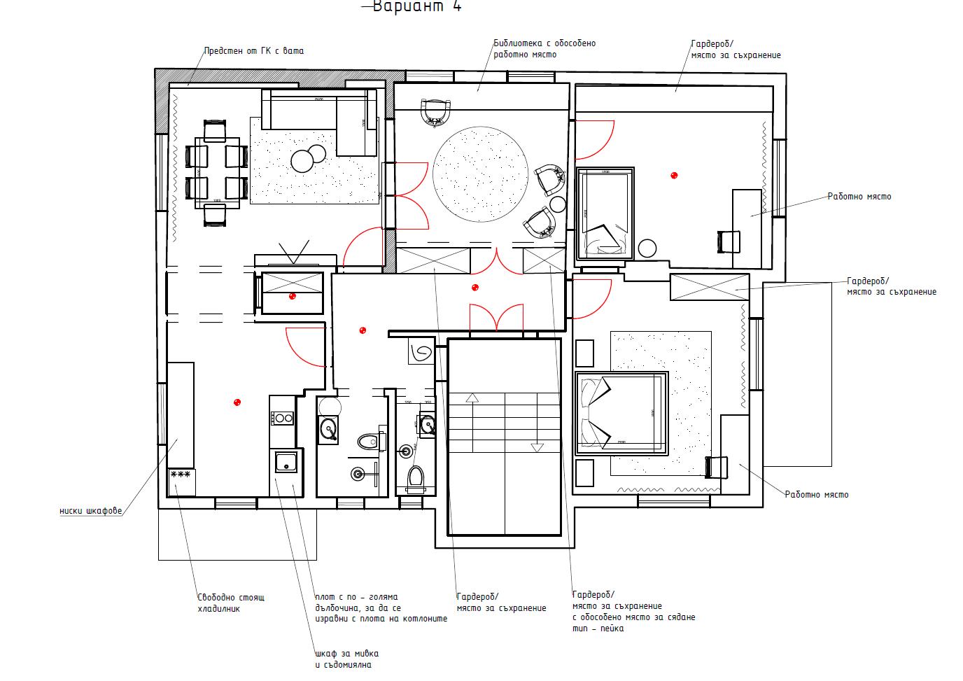
Аранжировки и строителни отвори на зидария
Аранжировка 1
Аранжировка 2
Аранжировка 3
Аранжировка 4
Зидария строителни отвори
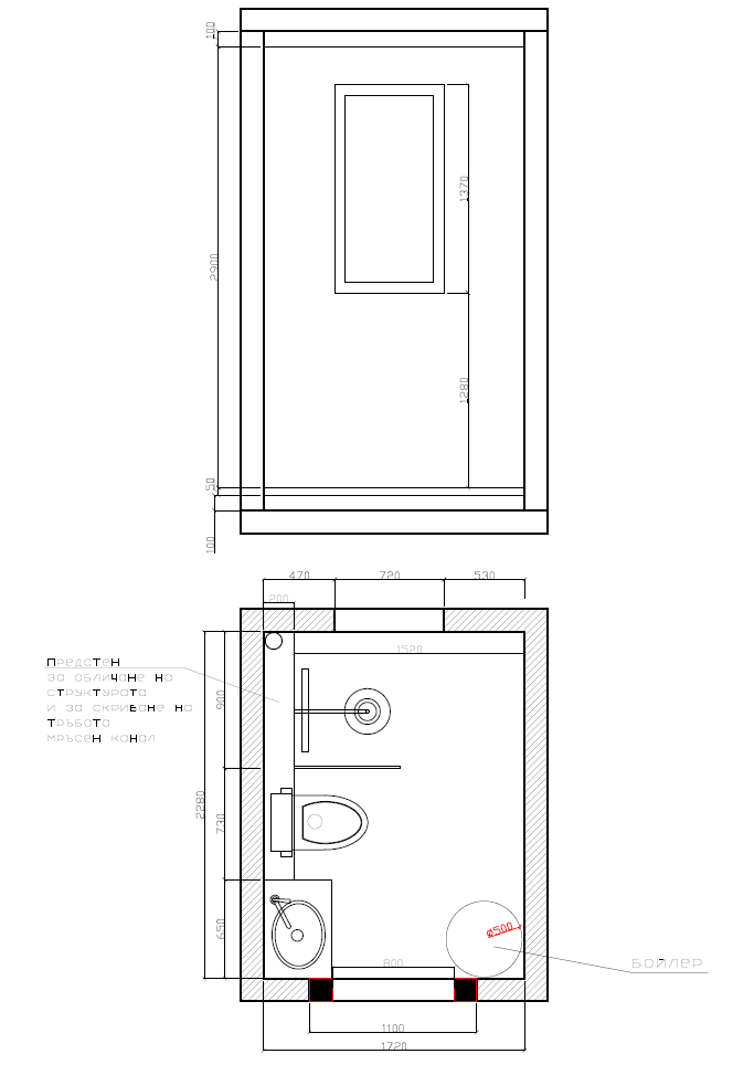
Вариант на бани и тоалетна
Вариант баня 1
Вариант баня 2
Вариант баня 3
Вариант баня 4
Вариант тоалетна
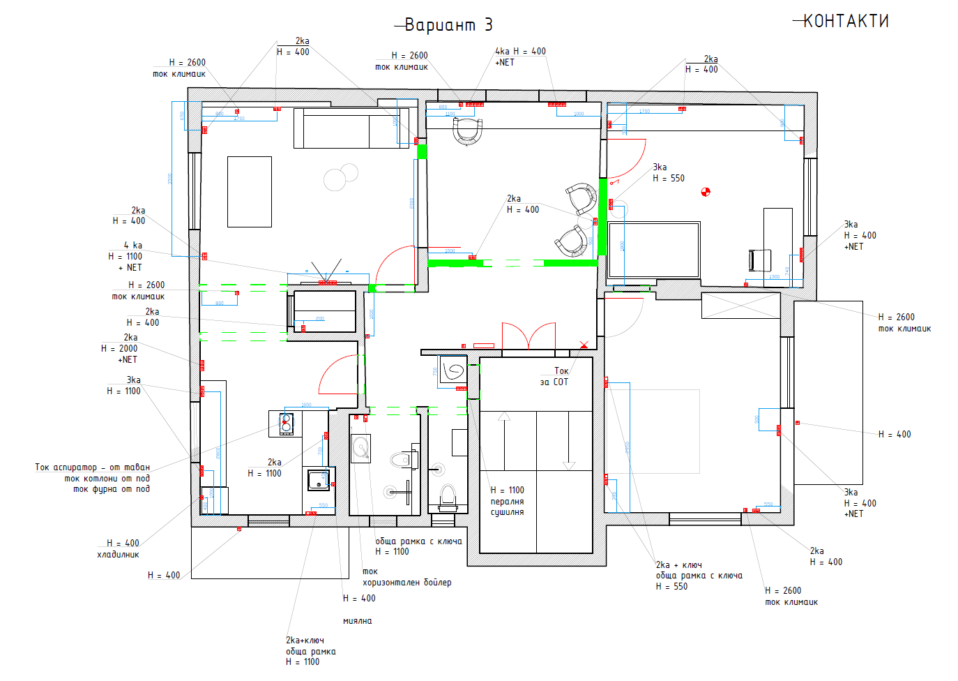
Вариант на разпределения (Контакти и осветление)
Разпределение контакти 1
Разпределение контакти 2(избрано)
Разпределение осветление
Разпределение осветление ключове